ローレルコート瑞江|ローレルシリーズの新築分譲マンション公式サイト、プランページです。

当社施工事例

当社施工事例

住む人を思う設計が、
日常を特別にする。

住む人に特別な時間を与えられるような
合計24タイプ※1のプランを
落ち着いた街並みと共に提供します。

公開プランの詳細はこちら

PARK FRONT

公園前※2という立地特性を最大限に活かし、
全戸公園向きのプランを実現。

1階住戸を設けず、全戸2階以上でパークビュー※3を楽しめるよう配慮。
角住戸率66%※4、バルコニーレスの大型連窓サッシなど、開放感あふれる工夫も取り入れました。
プランごとに様々な個性をご用意し、心地いいライフシーンを描きます。

C1タイプ(303号室)イメージイラスト C1タイプ(303号室)イメージイラスト

PARK VIEW※3

公園の潤いある緑景が、
日常の風景になる歓び。

現地Eタイプ9F相当からの眺望(2023年11月撮影)

パークフロント現地Eタイプ9F相当からの眺望(2023年11月撮影)

公園隣接・全邸公園向きを
最大限に活かすユニットプラン

ユニットプラン

パークフロント各階平面図

1邸1邸にこだわりを注いだ
全24邸のプレミアムプラン。

  • 開放感を高める工夫

    バルコニーレス・大型連窓サッシの
    南東向きのリビング・ダイニング

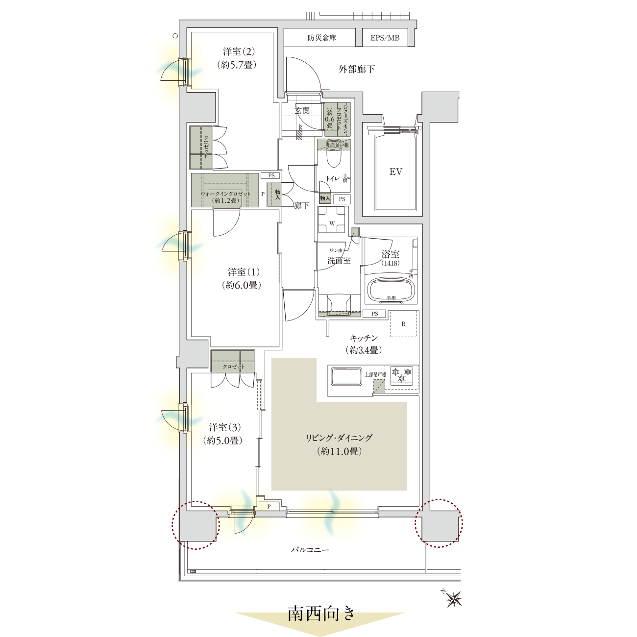
    パークフロント

    ETYPE
    80.28㎡

    □ バルコニー面積:24.75㎡

    リビングは正面にバルコニーを設置せず、大型連窓サッシを設け、ダイナミックなパークビューを楽しめるプランをご用意しました。公園の緑と広がる大きな空をリビングで寛ぎながら、ダイレクトに眺めることができます。

    READ MORE
    ETYPE
    現地Eタイプ9F相当からの眺望(2023年11月撮影)

    パークフロント現地Eタイプ9F相当からの眺望(2023年11月撮影)

  • 空間をスッキリさせる工夫

    全洋室ウォークインクローゼット

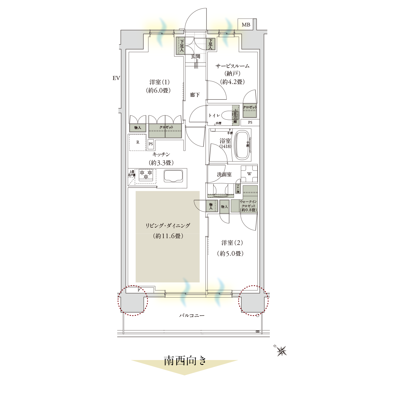
    パークフロント

    D2TYPE
    70.52㎡

    □バルコニー面積:
    12.79㎡(約3.86坪)(6階)
    □バルコニー面積:10.61㎡(約3.20坪)(7階)
    □バルコニー面積:14.60㎡(約4.41坪)(8・9階)

    □サービスバルコニー面積:1.43㎡(約0.43坪)(7階)

    D2TYPE
    当社施工例

    当社施工例

    住戸内の全洋室に大容量のウォークインクローゼットをご用意。
    季節ものや大型のアイテムまで収納でき、空間を広々と利用できます。

    READ MORE

ライフスタイルを広げる、
こだわりの空間

SCENE #01リビング+αのような

奥行き約2mのバルコニー

奥行き約2mのバルコニー
奥行き約2mのバルコニー

目の前に広がる公園を眺めながら過ごせるバルコニーは、約2mの奥行きを確保。ガーデニングやティータイムなど、趣味を楽しむ空間としても過ごせます。※5

SCENE #02ゆとりある日常をつくる空間

全戸リビング約10畳以上

全戸リビング約10畳以上

公園からの潤いある風がそよぐリビング・ダイニングは、全戸約10畳以上のゆとりを確保。寛ぎのひとときだけでなく、家族との時間も育みます。※3

全戸リビング約10畳以上

SCENE #03空と光を楽しむ時間

ルーフバルコニー

ルーフバルコニー
ルーフバルコニー

image photo

空の下のリビング感覚でご利用できるルーフバルコニー付きプランもご用意。やさしい光と心地いい風に包まれ、開放的な時間を過ごせます。※3

SCENE #04プライベートに過ごせる空間

主寝室バルコニー

主寝室バルコニー
主寝室バルコニー

image photo

2つのバルコニーをご用意したプラン。風が心地よく吹き抜ける、爽快な時間を過ごせます。自然の換気ができるため、新鮮な空気に包まれる暮らしが実現します。

SCENE #05心地よく過ごせる時間

2つのバルコニーを
ご用意したプラン

2つのバルコニー

風が心地よく吹き抜ける、爽快な時間を過ごせます。自然の換気ができるため、部屋の空気もクリーンに保てます。

SCENE #06多彩に過ごせる空間

スライドドア

スライドドア

リビング・ダイニングに隣接する洋室の扉は、壁面にまとめられるスライドドア仕様。ドアの開閉で空間の用途を自在に変えることができるフレキシブルな仕様です。

SCENE #07快適で安心できる家事時間

開放的なカウンターキッチンを全戸採用

開放的なカウンターキッチンを全戸採用

家族と会話しながら料理ができるカウンタータイプのキッチンを全戸に採用。明るく開放的なだけでなく、リビングのお子様の様子も確認でき安心です。最大天井高約2.45mを確保したオープンで開放的な空間です。

※一部下がり天井があります。

開放的なカウンターキッチンを全戸採用

CALM STAGE

用途地域図

大通りから一歩入った落ち着きのある立地。
南西向き中心※6、豊かな緑の潤いに寄り添う
カームステージ。

「ローレルコート瑞江カームステージ」は駅前の商業集積から、ほんの少しだけ距離をおいた、緑道によりそう穏やかな住環境・第一種住居地域に立地。神社の緑にも包まれて、過ごしやすい環境です。

東井堀親水緑道

パークフロント:約80m/徒歩1分
カームステージ:約100m/徒歩2分

南西向き中心※6、全16タイプの
プランバリエーションが、
多種多様な暮らし方を、
おおらかに受け止めます。

カームステージ立面概念図 カームステージ立面概念図

住む人に配慮した
全16タイプの多彩なプラン。

  • プライバシーに配慮

    入口から室内が見えにくいクランクイン玄関を採用
    プライバシーに配慮したプランニングです。

    カームステージ

    FTYPE
    73.48㎡

    □ バルコニー面積:8.73㎡(約2.64坪)
    (2〜4F)

    角住戸という配置を活かし、玄関はクランクインタイプに。来客の際などのプライバシー性に配慮しています。

    READ MORE
    カームステージ FTYPE
  • 動線を配慮

    水回りの動線効率を考えたプランニング

    image photo image photo

    キッチンから洗面や浴室への水回りの動線の効率化を配慮したプランニングにしています。

    カームステージ CTYPE

ライフスタイルを広げる、
こだわりの空間

SCENE #01角住戸だからこそ実現

窓付きキッチン

角住戸だかこそ実現。
気になる匂いを溜め込まない、換気に嬉しい窓付きの独立型キッチン。

窓付きキッチン

SCENE #02室内空間の有効活用

アウトポール採用

バルコニー側はアウトポール設計を採用しております。
デッドスペースがなくなり、室内空間を有効活用できます。

(カームステージ:G・H・M・O・Pタイプは除く)

アウトポール採用

SCENE #03ゆとりある日常をつくる空間

洋室2部屋がリビング・ダイニングに隣接

洋室2部屋がリビング・ダイニングに隣接

洋室(1)と(2)の2つの洋室がリビング・ダイニング、キッチンに隣接したプランニング。家族とのコミュニケーションを創出します。

image photo image photo

SCENE #04玄関をスッキリさせる工夫

広々シューズインクロゼット

玄関をスッキリさせる工夫
当社施工例 当社施工例

広々シューズインクロゼットでベビーカーやゴルフバック・アウトドアグッズなどの大きめな収納も可能です。

READ MORE

SCENE #054LDKプラン

カームステージ KTYPE

+αの暮らしを叶える
ゆとりある4LDKプラン

たとえばテレワークや、読書のための書斎、家族それぞれの趣味を楽しむための部屋など、住む人に応じて多彩な使い方を実現できるプランです。

環境性能表示(パークフロント)

環境性能表示(パークフロント)

環境性能表示(カームステージ)

環境性能表示(カームステージ)

<限定2邸>
家具付きモデルルーム販売中

※ご予約当日は「ローレルコート瑞江」マンションギャラリーへお越しください。建設地に係員は常駐しておりません。

※1:パークフロント8タイプ、カームステージ16タイプ
※2:約6mの道路を挟みます。
※3:住戸によって公園の見え方は異なります。また室内からは公園が見えない住戸もございます。
※4:全24戸中16戸
※5:公園前はパークフロントになります。
※6:全27戸中23戸
※パークフロントC1タイプ(303号室)イメージイラストは計画段階(2024年3月時点)の図面を基に描き起こしたもので、実際とは多少異なります。また眺望、景観は各階・各住戸により異なり、今後周辺環境の変化に伴い将来にわたって保証されるものではありません。
※掲載のパークフロント眺望写真は現地より9階相当の高さ・南東方向を2023年11月撮影したものです。眺望、景観は各階・各住戸により異なり、今後周辺環境の変化に伴い将来にわたって保証されるものではありません。
※掲載のパークフロント各階平面図は計画段階(2024年3月時点)の図面を基に描き起こしたもので、実際とは異なります。
※掲載のカームステージ立面概念図は計画段階(2024年6月時点)の図面を基に描き起こしたもので、実際とは異なります。
※掲載の当社施工例は当社他物件のモデルルーム等を撮影したものであり、形状や仕様等本件とは異なります。
※掲載の間取りは、計画段階(パークフロント:2024年7月時点、カームステージ:2024年6月時点)の図面を基に描き起こしたもので、変更になる場合があります。