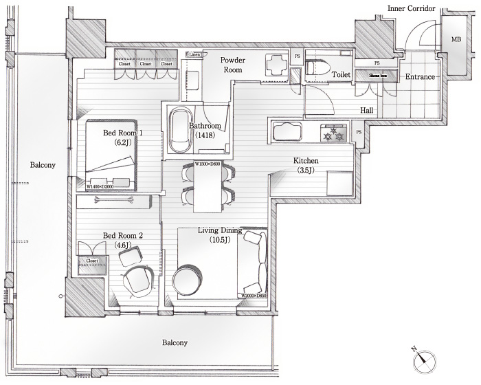
Dtype

2LDK

専有面積/61.04㎡(約18.46坪)

バルコニー面積/25.50㎡(約7.71坪)

VR MODEL ROOM

ドラッグで室内VRをご覧いただけます。

※VRモデルルームは、計画段階の図面を基に描いた完成予想イメージCGと眺望写真(2024年5月撮影)をCG加工したもので実際とは異なります。眺望は住戸により見え方が異なります。

  • 通風・採光に優れた2LDK角住戸プラン

  • 広々とした開放的な2面L型バルコニー

  • 6.2畳のゆとりの洋室1には豊富なクロゼットを設置

※1 駐輪場・サブアプローチ・
サブエントランス・
サブエントランスホール

※2 ゲストルーム

※3 エントランスホール・
アプローチ・エントランス・ロビー

  • 通常間取り
  • 家具配置イメージ付
    間取り
  • 収納

  • 床暖房

※掲載の間取り図は、計画段階の図面を基に描き起こしたもので、実際とは異なる場合があります。
また今後、施工上の理由等により変更が生じる場合があります。

※1 駐輪場・サブアプローチ・サブエントランス・サブエントランスホール

※2 ゲストルーム

※3 エントランスホール・アプローチ・エントランス・ロビー