[奈良]三和東洋ビル

所在地
奈良県奈良市西御門27-1
竣 工
1982年8月
規 模
地上5階
アクセス
近鉄奈良駅徒歩1分
ビル利用
可能時間
24時間
駐車場
なし

建物概要

設計
旧株式会社三和銀行管財部
施工
株式会社銭高組・株式会社奥村組共同企業体
構造
鉄骨鉄筋コンクリート造
敷地面積
983.24㎡
延床面積
3,237.72㎡
基準階面積
179.3坪(591.86㎡)
空調方式
個別空調
床仕様
タイルカーペット
光ケーブル
なし
エレベーター
1台
正面玄関
利用時間
7:00~22:00
防犯設備
機械警備システム

MAP

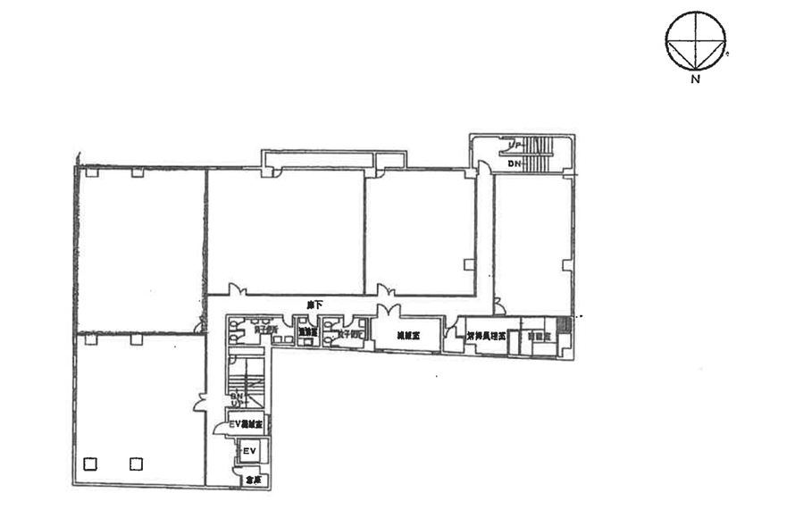
基準階平面図

拡大する

ピンチアウトすると大きくご覧いただけます

contact

お電話・ファックスでのお問い合わせ

TEL:06-6776-3040

FAX:06-6776-3320

アセット事業本部 賃貸事業部 [受付時間] 9:00~17:50

インターネットからのお問い合わせ

お問い合わせフォーム

近鉄不動産では、人気の西梅田エリアから御堂筋線‧
難波エリア、
あべのハルカスで有名な阿倍野‧天王寺エリアでの
賃貸オフィスビル‧貸事務所の情報を提供しています。
⼤阪主要エリアでのオフィスビル探しにご活用ください!

その他のオフィスビル

  • オフィスビル 一覧に戻る