[京都]ムラバヤシ M's Building

所在地
京都市下京区四条通御幸町西入奈良物町372番
竣 工
2005年3月
規 模
地上5階
アクセス
阪急京都線「京都河原町」駅から徒歩4分
地下鉄烏丸線「四条」駅から徒歩7分
ビル利用
可能時間
24時間
駐車場
なし

建物概要

設計
吉光建築設計事務所
施工
清水建設株式会社
構造
鉄骨造
敷地面積
150.56㎡
延床面積
648.79㎡
基準階面積
35.5坪(117.21㎡)
空調方式
個別空調
床仕様
タイル
光ケーブル
なし
エレベーター
1台
正面玄関
利用時間
8:00~23:00
防犯設備
機械警備システム

MAP

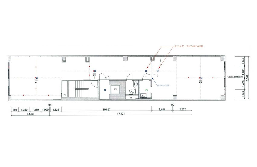
基準階平面図

拡大する

ピンチアウトすると大きくご覧いただけます

contact

お電話・ファックスでのお問い合わせ

TEL:06-6776-3040

FAX:06-6776-3320

アセット事業本部 賃貸事業部 [受付時間] 9:00~17:50

インターネットからのお問い合わせ

お問い合わせフォーム

近鉄不動産では、人気の西梅田エリアから御堂筋線‧
難波エリア、
あべのハルカスで有名な阿倍野‧天王寺エリアでの
賃貸オフィスビル‧貸事務所の情報を提供しています。
⼤阪主要エリアでのオフィスビル探しにご活用ください!

その他のオフィスビル

  • オフィスビル 一覧に戻る